
2020年12月,威海某新材料公司找到我公司要求對其車間進行整改。該公司原有設備已有多年,使用效果不如以前,為了保護環境,改善員工的工作條件,實現文明生產,我公司根據治理同類型粉塵項目的相關經驗及該公司的實際情況,本著高效節能的原則制定出以下治理方案。
綜合甲方要求及生態環境部發布的排放標準,根據現場工況滿足以下要求:
1、收集、處理、排放符合環保要求。
2、收集廢氣車間外排放最低限度節省投資。
以我方為其它公司設計制作并安裝的類似工程為藍本,在確保達到有關排放物標準的前提下,盡可能利用或借用現有場地上的條件,降低投資。設備選型:運行穩定可靠、效率高、節能、管理方便、維修維護工作量少、價格低;系統運行靈活、管理方便、維修簡單,盡量考慮操作自動化,減少操作勞動強度;采取措施減小對周圍環境的影響,合理控制噪聲、氣味,妥善處理與處置固體廢棄物,避免二次污染;設計美觀、布局合理,統一協調考慮。
粉塵處理工藝
粉塵的凈化主要靠除塵器來實現,除塵器選擇的優劣直接影響到除塵系統的捕集效果、除塵電耗以及整個系統能否長期穩定、可靠運行。除塵器的形式繁多,各有利弊,關鍵在于如何揚長避短,與系統工藝及粉塵組成相適應,以獲得較好的治理效果。
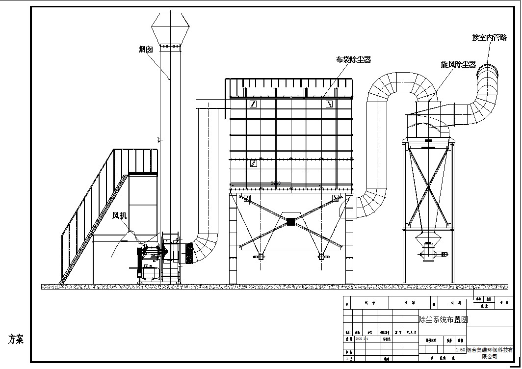
根據該公司粉塵排放特點,以及對其可行性、經濟方面進行綜合比選后確定采用旋風除塵器+布袋除塵器方式處理粉塵;
該旋風除塵器是切向進氣式,在相同壓力損失下,能處理的氣體約為普通旋風除塵器的3倍,能夠從氣流中分離固體和液體粒子,分擔后續布袋除塵器的壓力,并且有干燥空氣的作用,減少或者避免布袋除塵器糊袋問題的發生。
治理方案:
1、車間工況分析
鎢鉬生產車間現有燒結設備、壓料設備、軋制設備共計5臺設備,正常作業為先從燒結設備取出板料,在通過壓料或者軋制設備加工。在取出板料的瞬間及運送到壓料或者軋制設備期間有大量的煙塵產生;板料在壓料或者軋制加工過程中也會有煙塵產生。
1、廢氣源:燒結、壓料、軋制工序生產過程產生的煙塵
2、廢氣主要成分;顆粒物
2、粉塵排放特點:
板料出爐的瞬間(即燒結爐口處)產生煙塵的粉塵量多,物料轉移過程煙塵主要是蒸氣以及少量的粉塵;板料的壓料及軋制過程產生的煙塵,粉塵量多的位置集中于設備的作業區域,設備周邊主要以蒸汽以及少量的粉塵。
3、設計方案:
1、根據該公司粉塵排放特點,對粉塵量多,易收集的區域采用集塵罩方式收集,甲方原集塵罩可以利用,新增燒結設備集塵罩及管路。
2、高溫板料運輸路徑長;板料長度長于壓料、軋制設備作業區域;傳統的收集罩不能有效的收集,同時不利于正常作業,生產車間需要整體封閉,并采用整屋換氣方式收集煙塵。
3、現場僅通過布袋除塵器除塵,布袋糊袋嚴重,布袋使用周期短,更換費用高,新增旋風除塵器作為預除塵,并且降低煙塵濕度,保證布袋使用壽命。
4、優化風量設計,根據鎢鉬生產車間現有燒結設備、壓料設備、軋制設備逐一生產作業情況,通過電動風閥調節只保證1至2臺的煙塵收集,剩余能耗用于整屋換氣,這樣即降低了系統排風量,也可以保證煙塵的有效收集。
5、風機變頻設計,通過風機變頻,可使煙塵處理設施排風量與不同的生產工況相匹配,降低不必要能耗。
6、風量選用,新增處理設備、管路及優化風量設計后,原風機需要更換,考慮到現有布袋除塵器的處理能力等多方面因素,最終選取75KW風機,設計風量為:35000-40000m 3 /h,全壓為:4200-3600pa
7、工藝選用,采用“旋風除塵器+布袋除塵器”組合工藝對煙塵進行處理,處理后由排氣筒達標排放。
7、設計工作時間:可滿足24h連續運行;
8、設計排放標準:符合DB37 2801.5-2018;
4、工藝流程:

5、布局圖

我公司專業從事粉塵治理,可以根據不同行業不同工況出具不同的解決方案,為用戶節省成本,采用合理科學的解決方案,歡迎致電奧維環保15564537088!